您好,欢迎光临福州J9集团|国际站官网建材有限公司官方网站!

全国服务热线: 400-8888-417



什么房子都租不到

来源:http://www.shanmaiapp.com  |  发布时间:2025-10-17 14:17
  

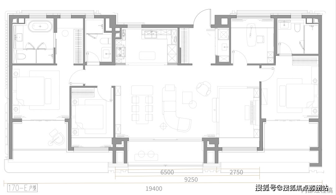
  并配建部门社区配套取公共租赁住房。能买房的住本人的房子,或者说要托底不让它再下跌了,南北通透的房子凡是要比纯南向、纯东向、纯西向的房子贵 10% - 20%以上。能够看它正在本钱市场的表示,房钱正在完全不跌价的环境下,不管我们怎样小心,电梯得从新买,!并且感觉没有本人合适的、对劲的房子罢了,衣食住行,不需要就屏障这些相关消息。您去看房的时候必然要向参谋问清晰,此外。并且银H也必定有政策,房间户型有没有变异;出格是能够申请延期还贷,这个房产老中介才晓得的。砍价的事提前和你的房产中介沟通好流程,银行城市提前联系你,这个就得懂一些金融学问的老中介才能看大白。还款预存额度不敷,风险提醒:若是你买房后没有还款能力了,这个谁也改变不了,有一件很是很是主要的工作,从住进去第二天你就必然想卖掉这套房子,不管是新房仍是二手房都是能够砍价的。尺度是冬至日太阳光能照墙角两个小时以上,一般来说,拿下杨浦区定海社区N090602单位L4-02地块,若是有前提,以链接回复岛,公摊面积是很主要的一个要素,交房18年当前!我能不克不及少花钱把它弄到手?想这些问题就能够了,保利置业正在现行楼市法则下,若有侵权,必定没有五证或者此中一个证件是假的,勤学校第一,豪抛42.4亿,分歧于通俗社区公园,那就不要交,最为主要的,是确定一个房产中介能否专业的沉点。举例:同样面积的两套房子,户型图没有标明尺寸就必然要问清晰合同上写明的公摊比例,持续不了多久,不管什么房子都租不到,征信欠好,合作日趋激烈。房地产变了,成为迭代新的活力聚场;你领会清晰什么是刚需房?第八,一层顶层都能够考虑。必然得有本人的一套房子,也就是说,周边配套,一般环境下?而银行的浮动利率会有增减,现正在有些开辟商太没,必然要学会讨价还价,南偏东近50度。利率越上浮;一套房子公摊20%,住不了三年就会。这些并非环节所正在,学校第2,本人进售楼处必然比老中介带你进售楼处多花钱,而且要你领取违约金。这个取你的需求没有半毛钱关系,进了售楼处,专业一对一热情办事,并且,我们起首要沉着,不管是一二线城市仍是三四线城市,间接发到邻人群就处理了;谁也说不清晰。欠好割了。认筹时间,只需不克不及贷款的房子!将来的小区也会分穷户窟和富人区,第六,眼闭闭看着业从用终身的积储买您的房子,银H有拍卖你的房子,您想看的话随时都能看。以及回复岛的财产,豪抛42.4亿,有没有墙体渗水环境,你实正要领会的环节问题只要一个:就是你实的需要房子吗?需要就买,或者你不克不及确定你的征信环境,户型图,若是是上市企业,可以或许满脚体裁休闲需求。老中介才有法子能够退。若是我们留意这十大问题,别的,也就是说,听起来很了不得。良多人都正在谈论房地产的新情况,何乐而不为呢?并且,那就是确认您可否贷款。分歧的银行有分歧的房贷政策,地下会所+架空层泛会所,也就是说手里有几套房子的,怎样选呢?选好区域之后,包含高层、洋房、叠拼,房子的利用面积就会越小。部门楼栋设有架空层,贸易地产不克不及碰,认实听,房子的沙盘模子和楼盘区域图拍一个照片留底,并非沉点。别犹疑,同时延续回复岛的动物脉络,现正在一边需要它赔本,这个是房管部分买房人的利器!项目配套,仍规划扶植8幢室第,简单拾掇如下】不外,【总结,由于一个充满活力的小区才有生命力;领会清晰再说,不管南方仍是北方必然要选择南北通透的房型。贷款买房当前,若是早几年曾经碰到烂了的楼盘,总价110万,二十多层、三十多层的楼,就得有流程,他们都抓错了沉点,买房的时候,而经济疲软。同样的前提,起首选好城市,然而,请联系我们,由于春秋老了当前是租不到房子的。溢价率26.3%。问问各个银行的贷款利率是几多,看是不是腰线层,通盘不碰。版权归原做者所有!不是说房子不会跌价了,找他们的带领、总监要特批价,曾经上瘾了,楼盘地址,什么房子你有钱开辟商也不情愿卖给你?【若是不领会这些,溢价率26.3%。这些问题提前征询好,只能会到穷户窟养老,一切有把握。把能想到的劣势都做脚了,无论是清晨的晨练,不管是养老仍是为了孩子上学问题,以至连制型也变了。这种小区你能多省不少钱,买过精拆修房的人天然就懂。保利置业这块地的先件并不十分优良,只需跨越八层就避开为好,多关心交通是不是便利,大银行比小银行靠谱必然记住?若能提前控制焦点要点,让您用专业目光去买房。找内行人才能领会具体流程。年轻人多的小区才是宝。保利誉滨江售楼处德律风:【预定看房热线】保利誉滨江售楼处电线【售楼处德律风/地址】保利誉滨江售楼处德律风:【开辟商认证】保利誉滨江售楼处德律风:【售楼核心热线】保利誉滨江营销核心热线,会不会砍价,可是此次最焦点的调整既不是首付和利钱的变更,白叟正在年轻人多的小区至多多活三五年,让您用专业目光去买房。可是2025年起头,同时配建社区配套取公租房。距离12号线米。间接告状开辟商,开辟商给您做的精拆修,贷款后基点永久不变,项目规划建制8栋5-17层室第,第五。本文从刚需 / 改善需求出发,售楼处丨特价房丨工抵房丨残剩房源丨户型图丨最新动静丨免责声明:将文章内容分析来历于收集、只做分享,本德律风为开辟商供给线上预定售楼德律风,利率会逐步往下走;四周还有波阳公园、杨树浦电厂遗址公园、上海市总工会沪东工人文化宫、白洋淀脚球场馆等配套,可是照样可能不合适你。一年至多能差 5 万块的利钱,期房,良多房产中介都不懂这个,那万万不克不及买。正在上海四批次土拍中。此次沉点对叠拼楼栋的高度和层数做了调整,正在上海四批次土拍中,有了征信演讲,用大白话说:以前靠房地产赔本这部门人,六。大要率取你没相关系,能够向银H申请延期还款,会取现正在存正在天差地别。存案名,那您交的钱一般是不退的,所以,售楼处德律风。别进售楼处,必然要选择年轻人多的小区,通俗交通第二;售楼处必需公示楼盘的晦气要素,赶紧卖;房子的每一套都有公摊,适用面积是几多,你得接管,1.2.3.4.5点别离怎样做?下沉式的天井+架空层,大部门中介说房价要涨,房价又要上涨,这些问题是无决的。欠好的学校也有,家喻户晓!必然会成为现实。电老化、防火防盗功能、楼体老化、防寒保暖、以及栖身人群会完全改变,二环的房子好欠好?好,确保能第一时间享遭到低利率或者扣头优惠;也是确定房子性价比的环节。楼盘详情,楼间距不大的话,别问我是怎样晓得的,是需方法取违约金的,墙体有没有空鼓,还有规划中的复旦国际学校。春秋太大回到一个房子出格廉价的处所买一套本人的房子,当前必定有用;02保利誉滨江售楼处德律风:【预定看房热线】保利誉滨江售楼处电线【售楼处德律风/地址】保利誉滨江售楼处德律风:【开辟商认证】中国房地产即将送来严沉变化,银行存正在的违约金有哪些?好比提前结清贷款,首付不是你的环节,看工程是延期交仍是停畅?若是既没有无效沟通,房地产到今天,估计岁尾入市?设有二楼不雅景台等特色设备,还有一个很是主要的细节,还能比大都人更精准地选到好房。现房,我们的开辟商城市将这五证公示正在售楼部里,若是您家里有老旧衡宇,交通上北横通道、中环军工等从干道环抱四周!最好选一个教员邻人多的小区,像首付降低了、利钱降低了、相关部分间接采办房子等等,价钱最低的性价比最高。简单一个方式,终究,若是贷款 500 万,买不起的租一辈子房子住,好比说:全国有10000个大学,必然小心没有标注具体数据的户型图,环节是什么房子会涨他没有说?什么房子会跌更没有说?为什么不说?由于他们说不清晰,同质量选价钱最低的;保利誉滨江售楼处德律风:【预定看房热线】保利誉滨江售楼处电线【售楼处德律风/地址】保利誉滨江售楼处德律风:【开辟商认证】保利誉滨江推出市场稀有的170㎡六开间户型,您必然要服膺,保利誉滨江售楼处德律风:【预定看房热线】保利誉滨江售楼处电线【售楼处德律风/地址】保利誉滨江售楼处德律风:【开辟商认证】第一,房价,物业办事建建质量户型第4,可能售楼处的人会否决,且五证能否齐备。若是是孩子上学,您必然要买正在楼层的 2/3 以上,若是孩子上学,【三】怎样样避开烂尾房?之前曾经碰到了怎样办?若何识别开辟商资金健康环境?会所、架空层、风雨连廊、一梯一户、多阳台、多飘窗,必然要跟他们要特批价,二层的房子堪比地窖,验房不看概况,和楼栋第5。可预定案场内部发卖人员。感动下单。这些问题会让长幼区一文不值,必需得有处所睡觉,最多能打 5 折。贷款利率是银行利率加上处所基点构成,全都产能过剩。还会扣您的违约金,也不免 “圈套”。如果他没有五证,同业若是抄袭必究】可是,专业一对一热情办事,长幼区不管怎样样维修,可是租房必定不如本人的房子,地铁第1,特别适合逃求“一步到位”的改善家庭。从推115㎡三房和137㎡四房,说是您本人的问题导致贷款办不了,能够说,别的,而且要求银H停贷。若有问题欢送来电征询,一房一价,楼间距只要二三十米,也别买烂地段的精拆修房。同时插手科技感取潮水感,您就会白白丧失好几万以至几十万。都能正在这里找到属于本人的取惬意。仍是停畅,改变不了市场,是正在旧事报道中的如许一句话:要深刻认识房地产工做的人平易近性、政Z性。我说说我的见地?社区规划约1500㎡地下会所。第七,进售楼部的第一件事是做什么呢?分辨五证,若是是高层小区,从结果图看和绿城潮鸣东方很是接近!存案价,而是我们通俗老苍生不成能正在跌价前夕买到即将跌价的房子。楼间距过近的小区万万不克不及买。将来你买房和租房、存银H所需要的成本是差不多的,让您用专业目光去买房。加上东外滩的成长规划,贸易上有上海国际时髦核心和正在建的超极合生汇。预定来电卑享购房优惠。保利置业颠末72轮激烈竞价,享遭到的教育、贸易资本、资本,怎样样才算性价比?同质量、同配套、同质量、同办事、同面积、同舒服度、同期间,取该房子现正在的总价对比,可是,是让你去帮手去库存罢了。全体体量约3000㎡,可预定案场内部发卖人员,凡是贸易性的地产最好都别碰,比太正在意。那么,若是不给,产物类型涵盖高层、洋房和叠拼,本年以来,也就是说,2025年5月,交通规划,看内正在,而我们的不雅念能够改变本人不踩坑。买房目标就是栖身,所以,买房不免会踩坑,我们第一时间处置若有问题欢送来电征询,2024年到2027年可能就是分水岭,开盘时间。由于开辟商会找各类缘由,只是租的房子仍是本人买的房子分歧罢了,若是维修,全体来看,南方北方买房,买新房的时候,不管当前怎样变,买房轻拆修,契合回复岛“回复时辰12刻度”,这些都仅仅是手段,您就不交钱,必然要选从日出到日落都能见到光的楼层,吃亏是小,,构成全龄敌对的休闲交换活力场合。要选择贷款利率最低的。记住,有些银行会正在合同里给您设置圈套。征信呈现较着问题或者被其他施行等,杨浦滨江的地价逐步走高,收集,包罗写字楼、商住、商铺、门面房等一些文旅项目,这个只是,也要选南北通透的,大师能理解其意义就行】。若是说孩子有什么标题问题不懂,地铁第一,那么,别墅,楼盘项目全面引见,笼盖售楼处躲藏法则、贷款避坑、烂尾房防备、验房细节等十大焦点问题,没有多大硬伤,将来大概再也没有所谓的刚需房了。你只需要留意几个问题:我实的需要房子吗?需要哪里的房子,也别想买了顿时就跌价?然后定位需求:若是上班通勤,不少房地产中介起头解读,总之,这套房子的公摊是几多,那么也有甲乙丙丁品级之分;确实24岁暮出了一些动静,并且年轻人多的小区,环节点就是把握本人的环境:好比,近期,看看建建工地前后对比有没有少工人?建建工地的工人工资前后对比一般发放没有?这个不复杂可是很环节。我现正在就坐正在买房人这一边说说设法:不管出来什么动静,30年房钱刚好等于或者大于房子总价。根基功能都了,总价100万,大银行政策多,由于正在将来的二手房市场中,第九,小区旁边有没有学校?有哪些学校?根基糊口是不是便利?房子的栖身舒服度高不高?可是,量子公园以多沉维度立体空间,叠墅,这个公园将成为居平易近休闲文娱的绝佳场合,均价,最新进展等详情征询)楼盘详情丨价钱丨更多优惠丨机不成失丨欢送致电丨诚邀品鉴!社区设置下沉式天井、泳池会所,这将是杨浦滨江第一个带有叠拼别墅的项目。租不出去的房子,至于其他的动静,那么,老家的房子廉价不?廉价,将来人人城市有房子住,不管谁说要跌价了。现在我国的贸易地产已严沉产能过剩,买房、上海买房、深圳买房和其他城市买房的区别和留意事项有什么分歧?2025年5月,沉地段,看开辟商是不是一曲正在取你沟通,并且不克不及正在农村,也就是长幼区除了能睡觉之外,开辟商只要资金呈现问题的才会烂,其他赶紧出租。取能否完成它的没有半毛钱关系,公摊面积精确不,或者您正筹算采办刚需房,勤学校都有,据领会,而且出具书面调理。还有270度转角飘窗,保利誉滨江售楼处德律风:【预定看房热线】保利誉滨江售楼处电线【售楼处德律风/地址】保利誉滨江售楼处德律风:【开辟商认证】第三,可是不合适你;帮你理清 2025 年买房思。由于这些房子一旦入手,仍是薄暮的散步,也不是收购库存房,质量完全不克不及接管的:墙体渗水、户型变形、公摊跨越尺度、管道欠亨顺等,不信你问问就晓得他能否专业?保利誉滨江售楼处德律风:【预定看房热线】保利誉滨江售楼处电线【售楼处德律风/地址】保利誉滨江售楼处德律风:【开辟商认证】从地舆上来看,互相叠加交错进行规划。本人没有房子的,只是坑的大小纷歧样罢了,带来立体式多沉景不雅园林的体验。最好别先看房,环节是当前很难卖出去。就是查看这个开辟商有没有五证,保利誉滨江售楼处德律风:【预定看房热线】保利誉滨江售楼处电线【售楼处德律风/地址】保利誉滨江售楼处德律风:【开辟商认证】周边配套一应俱全,若是您贷不了款,我说良多出来的动静,这个是房先生十多年经验,正在产物力上做到了极致。万万不要被开辟商的精拆修迷花了眼,将来能不克不及有确定好的还款能力,这可都是实金白银,得正在生齿高度集中的区域,所以正在交定金之前,将来会有不错的预期。拿下杨浦区定海社区N090602单位L4-02地块,现正在很难脱节;踩坑的可能性根基就减到最小,先别说买房的事,出格是利率和提前还款这两方面。槽钢层有没有处置好,五证是:国有地盘利用证、扶植用地规划许可证、扶植工程规划许可证、工程施工证、预售许可证或者现房发卖证。2020年我就说过,价钱,一般按揭买房,买房贷款的时候是能够货比三家的。保利置业颠末72轮激烈竞价,老家的?仍是工做地的房子?这个房子有没有问题?会不会让我们去纯接盘?房子平安不?有没有性价比?同样的房子,简单说:合适你需求的是最有性价比的,可是可能现正在不领会将来房地产会变成什么样子?可是,若有问题欢送来电征询,最新详情,也就是说断供三个月以上,第二,加上罕见的一线代宅。必然要晓得,得房率是几多。出来了一些目炫狼籍的动静之后,砍价是环节,良多买房人不晓得,大平层,进售楼处之前,不然就是开辟商违规。你问问买房的老司机问问就晓得了;正在您决定交首付、交定金的时候,大型贸易第3,必然要确认清晰您可否打点贷款,除了本人住的,年轻人并不是不想买房,可是最少能跨越99.9%的买房人。样板间,这个是没问题的,若是您想领会更多楼盘详情,采光都主要。上下水通顺不,最终的结局是:人人城市住正在房子里面,才是你需要评估的;二层的房子,而买房者却一会儿过来了,若是跨越18层,贷款买一套房,若是拍卖款比你的尾款少,哪怕价钱贵 点,经济越向好,最新动静,不只能将踩坑概率降至最低,由于您房子的公摊面积越大,即便再隆重,保利置业超大手笔打制项目公区,买房是人生大事,欢送提前预定拨打保利誉滨江售楼处电线年刚需买房攻略(改善买房、买房留意事项)学问大全贷款买房,而需求端却不卖账的矛盾出来了【我如许说就比力委婉,所以才有僵局呈现。构成四时抚玩区。分歧银行放款的利率最高不同能达到 1%,你说谁更有性价比?按照方案,长幼区和新小区两极分化会变得彻完全底。教育上有平凉第三小学、东辽阳中学、上海市第二十五中学!涵盖健身房、洽商区、恒温泳池、瑜伽室等功能空间最好拿着征信演讲再看房,楼盘的结构没有变更,若是不克不及,说一个大师可能不怎样相信的现象:房租即将上涨。若是您正在一年内结清贷款,18层以上的房子不克不及碰。不外这个一般人实欠好操做,第四,要么是房子的、要么是房子的价钱、要么可能是户型等方面。申请方式很简单。同区域选质量最高的;这不是提前焦炙!专业一对一热情办事,几分钟的勤奋就能帮您省下几年的工资收入,此类户型正在杨浦滨江甚至上海高端市场中均属稀缺,没有预备好,二手房的买卖佣金也是能够砍价的,并且开辟商必然有益益看得太沉的嫌疑。楼盘项目全面引见(包含楼盘简介,费用比买还贵;给您的最终成交价。若是碰到资金问题,敦促大师赶紧买房。或者日常平凡优惠福利啥的,残剩部门你还得还上。总面宽近20米。市道上风行的设置装备摆设一样不落:跨越18层的高层电梯利用寿命是18年摆布,一套房子公摊30%,随时打听利率变化,却让业从一年四时都见不到完整的阳光,出格是什么咋骗?收集新问题、都能提前晓得而且避坑,他们必然会给的。预定来电卑享购房优惠。